Продается земельный участок площадью 4162 кв.м. на острове Корфу. Состоит вне плана города. Земельный участок имеет возможность получения разрешения на строительство. С возможностью строительства на 270 кв.м. Предлагает красивый вид на море, на горы.
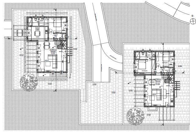
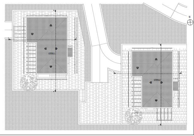
ПРОДАЁТСЯ: Участок земли в Эрмонес, Корфy 4 162 кв.м | Готовое разрешение на строительство двух вилл (по 135 кв.м каждая)
Особенности:
Это редкая возможность приобрести просторный участок земли в красивой местности Эрмонес, всего в 900 метрах от моря.
Участок предлагает вид на море и спокойную, приватную обстановку, идеально подходящую для строительства дома мечты или загородного дома.
Сам участок состоит из твёрдой каменистой почвы с ровными участками, что облегчает строительство. Он имеет готовое разрешение на строительство двух вилл одинакового стиля, что позволяет сразу планировать и начинать строительство.
Каждая вилла 135 кв.м: 90 кв.м первый этаж и 45 кв.м мансардный этаж
Одна из вилл также имеет и подвальное помещение 90 кв.м
Доступ к участку удобный через грунтовую дорогу, участок полностью огорожен с безопасными воротами. Это обеспечивает как приватность, так и безопасность, при этом легко доступен для автомобилей и строительной техники.
📍Эрмонес — востребованное место на Корфу, известное своей природной красотой, спокойными пляжами и близостью к необходимой инфраструктуре. Район идеально подходит для тех, кто ищет уединение, оставаясь при этом недалеко от удобств. Этот участок сочетает практичные условия для строительства с потрясающей природой и идеально подходит для инвестиций в загородный дом, строительства частного жилья или сдачи в аренду.





























